The aim of the project is to expand the existing nursery complex with functionally necessary buildings, creating a sustainable and efficient farm within the Gauja National Park.
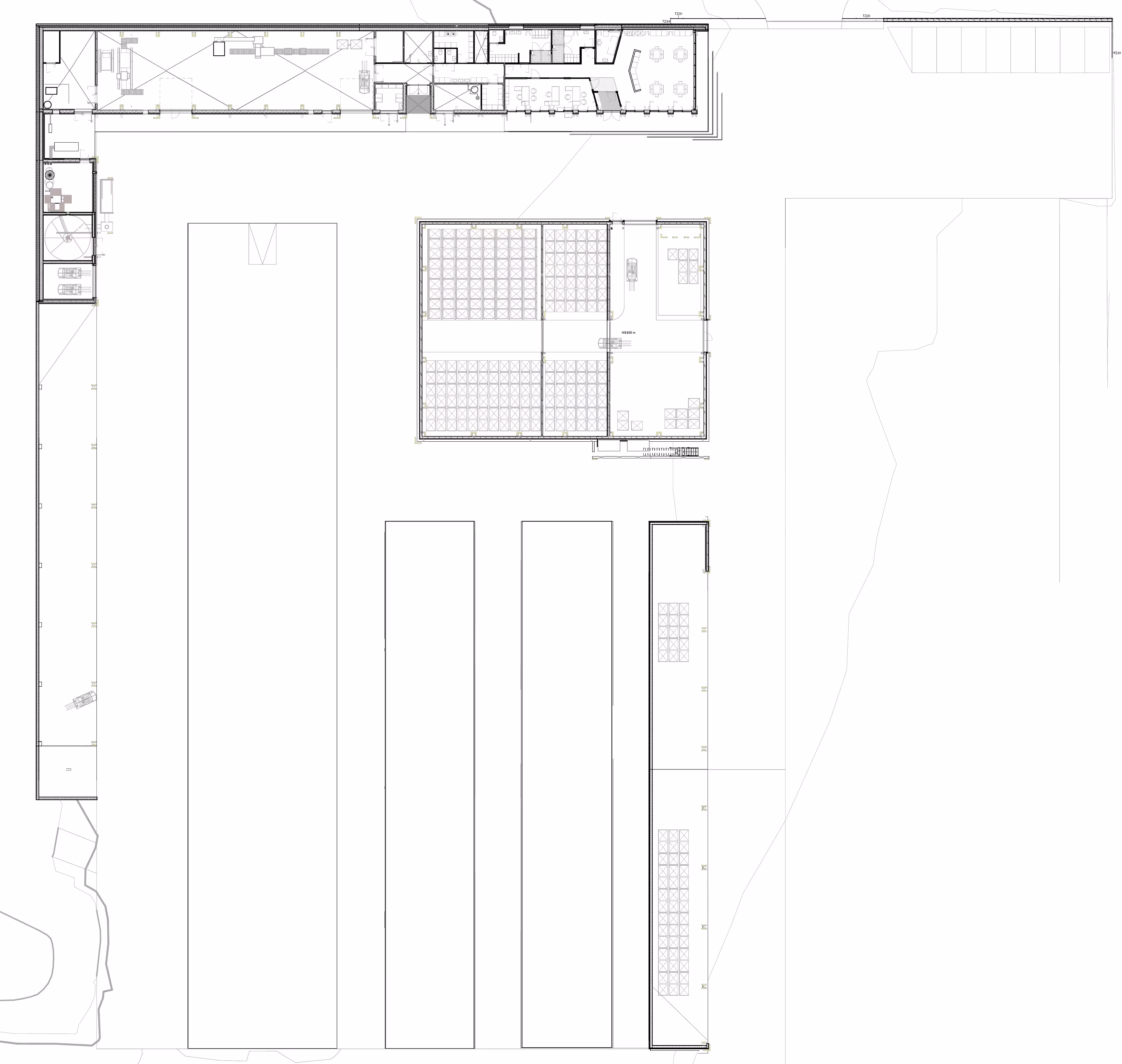
The Zābaki tree nursery has been in operation since 1998, specializing in birch container seedling cultivation. The site is located in one of the most scenic areas of Latvia—the Gauja National Park. The existing complex includes a warehouse, greenhouses, water tanks, and seedling fields. As part of the project, old buildings will be dismantled, and new ones will be constructed while preserving the existing greenhouses and fields.
The concept for the new development includes four main buildings:
The buildings are compactly arranged to create a cohesive farm structure and ensure efficient production flows.
The new structures are built using glued laminated timber panels and trusses, combining traditional Latvian rural architecture with modern technology. The facades feature untreated softwood planks, allowing the buildings to blend harmoniously into the natural environment.
A unique structure in the project is the warehouse (cold store building), designed to function as a large refrigerator. The building is constructed on a concrete foundation with glued laminated timber panel structures and external walls. These walls remain uninsulated, allowing the wood to breathe freely. No additional internal linings or coverings are applied—the entire building operates as a cooling chamber. This is a unique experiment, relying on the natural properties of wood to test its ability to create the required microclimate.
This project establishes a sustainable and functional farming environment that respects natural and landscape values while ensuring the efficient production and processing of seedlings.
Photos: “LATVIJAS FINIERIS”
The Latvian Architecture Award is Latvia’s highest national award in architecture, presented annually. The prize honors outstanding achievements, supports the field’s growth, and promotes public appreciation of architecture. The "Zabaki" Tree Nursery project became a finalist among 48 entries submitted to the competition.
